- Woonoppervlakte
- Circa 52 m²
- Inhoud
- Circa 172 m³
- Bouwjaar
- Gebouwd in 1967
- Aantal kamers
- 2 kamers (1 slaapkamers)
Adres en Wijk
Welkom op Vrijzicht 57 in Amsterdam Nieuw-West! Dit modern ingerichte appartement op de 6e verdieping biedt alles wat je zoekt: een ruime en lichte woonkamer, een balkon op het Westen met prachtig vrij uitzicht op de Sloterplas. De rustige ligging zorgt voor comfort, terwijl je toch alle voorzieningen binnen handbereik hebt.
Op loopafstand vind je het Osdorpplein met diverse winkels en supermarkten, en voor een cultureel avondje uit is Theater De Meervaart dichtbij. De Sloterplas is perfect voor een wandeling, joggen of een hapje eten aan het water. Met tram 17 en 1 ben je binnen 30 minuten in het centrum, en station Lelylaan ligt op slechts 10 minuten afstand. Bovendien zijn er goede uitvalswegen en voldoende parkeermogelijkheden in de buurt.
Kenmerken van de woning
- Wonen op de 6e verdieping met lift
- Lichte woonkamer met grote raampartij en uitzicht op de Sloterplas
- Balkon op het Oosten
- Twee extra bergingen: in de onderbouw en een ruime externe berging
- Centrale ligging met alles in de directe omgeving
- Mogelijkheid tot overname van meubels
- Energielabel D, HR ++ beglazing
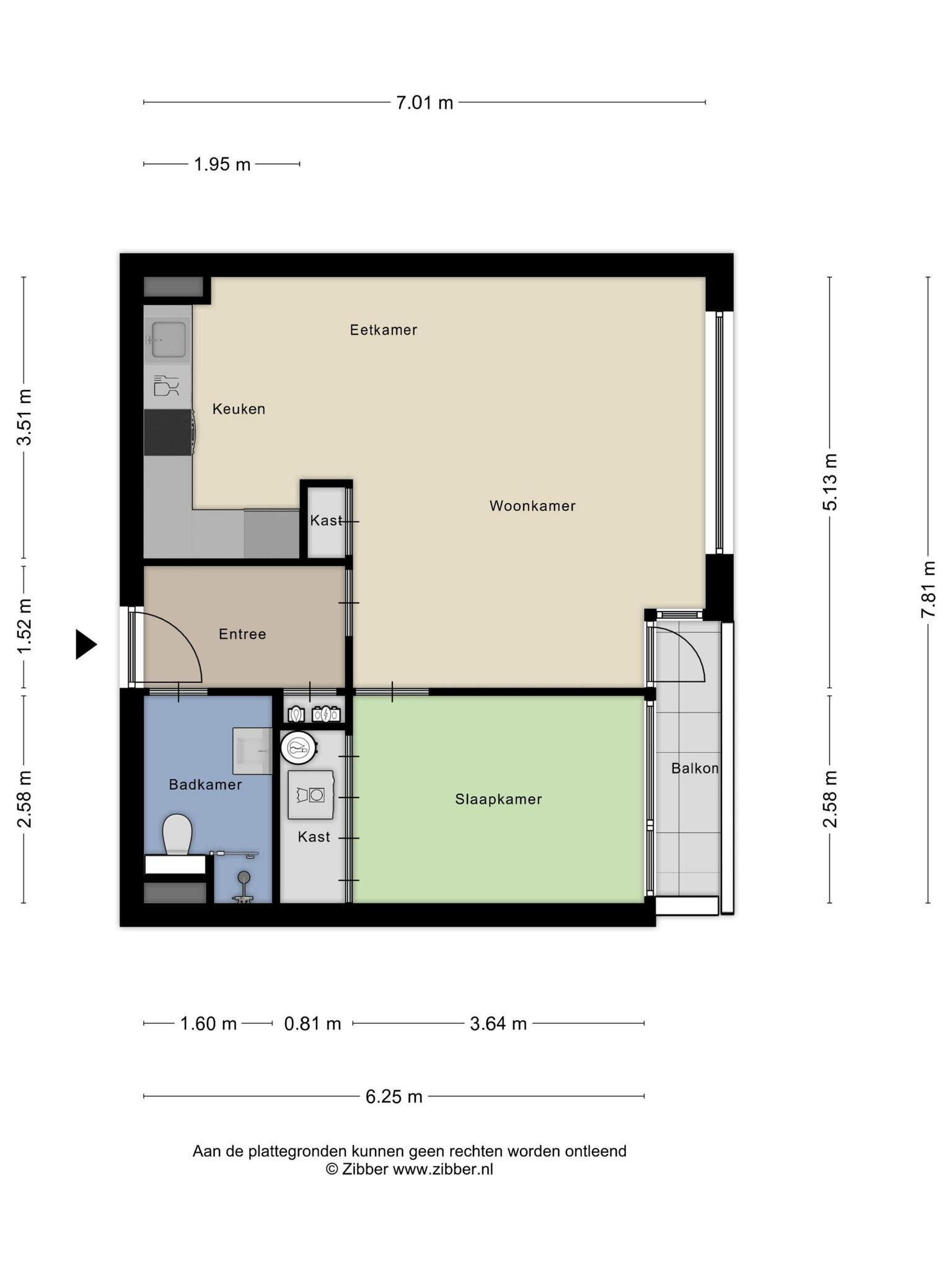
Indeling en Opbouw van de Woning
Via de centrale hal met bellentableau en intercom neem je de lift naar de 6e verdieping.
Wonen & Koken
Bij binnenkomst in het appartement word je meteen verwelkomd door de lichte en modern ingerichte woonkamer. De grote raampartij zorgt voor een ruimtelijk gevoel en biedt een adembenemend uitzicht op de Sloterplas. Via de toegangsdeur stap je direct het balkon op het Oosten op, waar je in de ochtend heerlijk een kopje koffie kunt drinken.
De open keuken is compleet uitgerust met alle benodigde keukenfaciliteiten. Hier kook je moeiteloos een heerlijke maaltijd voor vrienden, terwijl je gezellig samen aan de eettafel dineert. Extra handig: er is een aparte kast aanwezig voor extra opbergruimte.
Slapen & Douchen
De slaapkamer biedt voldoende ruimte en heeft een ingebouwde kast, waarin momenteel de wasmachine en droger staan opgesteld. De badkamer beschikt over een inloopdouche, wastafelmeubel, toilet en is netjes betegeld.
Uitstekende bereikbaarheid
-Tram 17 en 1 brengen je in 30 minuten naar het centrum
-Station Lelylaan op 10 minuten afstand
-Goede verbindingen met A10, A9, A4 en A5
-Ruime parkeermogelijkheden op diverse parkeerterreinen in de buurt
De VVE en Erfpacht
De Vereniging van Eigenaars Torenwijck III te Amsterdam bestaat uit 83 appartement, aparte bergingen en garages. Het wordt professioneel beheerd door Newomij VvE Beheer B.V.
De maandelijkse servicekosten bedraagt € 197,16 (inclusief € 80,00 voor stookkosten, blokverwarming) voor het appartement en de bergingen.
Voor de erfpacht gelden de Algemene Bepalingen voor voortdurende erfpacht van 2000. Het erfpacht tijdvak loopt tot 16 november 2038, de jaarlijkse canon bedraagt € 70,55.
Sfeer en Doelgroep
Dit appartement is perfect voor starters of expats die op zoek zijn naar een licht en comfortabel thuis in een rustige, maar goed bereikbare omgeving. Met het vrije uitzicht, het zonnige balkon en de fijne indeling is dit een plek waar je je direct thuis voelt.
Plan snel een bezichtiging in en ontdek dit fijne appartement!
Voor meer informatie: check de eigen woning website:
vrijzicht57.nl
Toelichtingsclausule NEN2580
De Meetinstructie is gebaseerd op de NEN2580. De Meetinstructie is bedoeld om een meer eenduidige manier van meten toe te passen voor het geven van een indicatie van de gebruiksoppervlakte. De Meetinstructie sluit verschillen in meetuitkomsten niet volledig uit, door bijvoorbeeld interpretatieverschillen, afrondingen of beperkingen bij het uitvoeren van de meting.
*******ENGLISH VERSION**********
Light and modern apartment with beautiful views of the Sloterplas!
Address and District
Welcome to Vrijzicht 57 in Amsterdam Nieuw-West! This modernly furnished apartment on the 6th floor offers everything you are looking for: a spacious and bright living room, a East-facing balcony with a beautiful unobstructed view of the Sloterplas. The quiet location ensures comfort, while still having all amenities within easy reach.
Within walking distance you will find Osdorpplein with various shops and supermarkets, and Theater De Meervaart is nearby for a cultural evening out. The Sloterplas is perfect for a walk, jogging or a bite to eat by the water. With tram 17 and 1 you can reach the center within 30 minutes, and Lelylaan station is only 10 minutes away. In addition, there are good roads and sufficient parking options in the area.
HIGHLIGHTS of the house
- Living on the 6th floor with elevator
- Bright living room with large windows and a view of the Sloterplas
- Balcony on the East
- Two additional storage rooms: in the basement and a spacious external storage room
- Central location with everything in the immediate vicinity
- Possibility to take over furniture
- Energy label D, HR++ glasses
Layout of the House
Via the central hall with doorbells and intercom you take the elevator to the 6th floor.
Living & Cooking
Upon entering the apartment you are immediately welcomed by the bright and modern living room. The large windows create a spacious feeling and offer a breathtaking view of the Sloterplas. Through the entrance door you step directly onto the East-facing balcony, where you can relax with a cup coffee in the morning sun. The open kitchen is fully equipped with all necessary kitchen facilities. Here you can effortlessly cook a delicious meal for friends while dining together at the dining table. Extra handy: there is a separate cupboard for extra storage space.
Sleeping & Showering
The bedroom offers plenty of space and has a built-in cupboard, where the washing machine and dryer are currently located. The bathroom has a walk-in shower, washbasin, toilet and is neatly tiled.
Excellent accessibility
-Tram 17 and 1 take you to the center in 30 minutes
-Lelylaan station 10 minutes away
-Good connections with A10, A9, A4 and A5
-Ample parking options in various parking lots nearby
The VVE and Leasehold
The Association of Owners Torenwijck III in Amsterdam consists of 83 apartments, separate storage rooms and garages. It is professionally managed by Newomij VvE Beheer B.V.
The monthly service costs are € 197,16 (including € 80 for heating costs) for the apartment and the storage rooms.
The General Provisions for Continuous Leasehold of 2000 apply to the leasehold.
The leasehold period ends November 16, 2038, yearly canon amount is € 70,55 .
Atmosphere and Target Group
This apartment is perfect for starters or expats who are looking for a bright and comfortable home in a quiet, but easily accessible area. With the unobstructed view, the sunny balcony and the nice layout, this is a place where you immediately feel at home.
Schedule a viewing quickly and discover this lovely apartment!
Further information, check house website:
vrijzicht57.nl
Explanatory clause NEN2580
The Measurement Instruction is based on NEN2580. The Measuring Instruction is intended to apply a more unambiguous method of measuring to provide an indication of the usable surface. The Measurement Instruction does not completely exclude differences in measurement results, for example due to differences in interpretation, rounding off or limitations in carrying out the measurement.
Overdracht
- Vraagprijs
- € 330.000 k.k.
- Status
- Verkocht
- Aanvaarding
- In overleg
- Bijdrage VvE
- € 197.16 p/m
Bouw
- Object type
- Bovenwoning, appartement
- Soort bouw
- Bestaande bouw
- Bouwjaar
- 1967
- Soort dak
- Zadeldak
Oppervlakte en inhoud
- Woonoppervlakte
- 52 m²
- Inhoud
- 172 m³
- Externe bergruimte
- 6 m²
- Gebouwgeb. buitenruimte
- 3 m²
Indeling
- Aantal kamers
- 2 kamers (1 slaapkamers)
- Aantal badkamers
- 1 badkamer
- Badkamervoorzieningen
- Toilet, douche, wastafelmeubel
- Aantal woonlagen
- 1 woonlaag
- Voorzieningen
- Lift
Energie
- Energielabel
- D
- Energielabel registratie
- 18-05-2015
- Isolatie
- Dubbel glas, hr glas
- Verwarming
- Blokverwarming
- Warm water
- Elektrische boiler huur
Buitenruimte
- Ligging
- Aan water, aan park, aan rustige weg, in woonwijk, vrij uitzicht
- Balkon / dakterras
- Balkon
- Tuin
- Geen tuin
Bergruimte
- Schuur / berging
- Aangebouwd steen
- Voorzieningen
- Voorzien van elektra
Garage
- Soort garage
- Geen garage
Parkeergelegenheid
- Soort parkeergelegenheid
- Betaald parkeren, parkeervergunningen, op eigen terrein
VvE checklist
- Inschrijving KvK
- Ja
- Jaarlijkse vergadering
- Ja
- Periodieke bijdrage
- Ja, € 197.16 p/m
- Reservefonds aanwezig
- Ja
- Opstalverzekering
- Ja
Energieverbruik in Amsterdam
Energielabel deze woning
Energielabel D
Publicatie energielabel: 18-05-2015
Stroomverbruik per jaar
(Gemiddelde appartement in Amsterdam)
Gasverbruik per jaar
(Gemiddelde appartement in Amsterdam)
* Cijfers zijn afkomstig van het CBS en bedoeld als indicatie en kunnen verschillen voor deze woning
Indicatie hypotheeklasten
Eigen inleg:
Spaargeld / overwaarde
Rente:
Laagste 10-jaars rente
Laagste 10-jaars rente
2,71% - Centraal Beheer Groen... - NHG
3% - Centraal Beheer Groen Lee... - 80%
Laagste 20-jaars rente
3,19% - Centraal Beheer Groen... - NHG
3,31% - Centraal Beheer Groen... - 80%
Laagste 30-jaars rente
3,34% - Centraal Beheer Groen... - NHG
3,47% - Centraal Beheer Groen... - 80%
Hypotheek:
Bruto maandlasten: € 0 p/m
Netto maandlasten: € 0 p/m
Hoe berekenen we dit?
Het rentepercentage is gebaseerd op de laagste 10-jaars vaste rente voor één hypotheekdeel. De vermelde rente (2.71% met NHG) is gecontroleerd op 12-05-2025. Deze berekening is gebaseerd op een annuïteitenhypotheek die volledig wordt afgelost, waarbij de maandlasten gedurende de gehele looptijd gelijk blijven. De werkelijke rente en netto maandlasten kunnen variëren, afhankelijk van uw persoonlijke situatie en de hypotheekverstrekker. Raadpleeg een financieel adviseur voor een nauwkeurige berekening en advies. Aan deze berekening kunnen geen rechten worden ontleend; het dient enkel als indicatie.
Documentatie
Kadastrale kaart
Leefomgeving
Plattegronden PDF
BAG uittreksel
Brochure
WOZ waarderapport
Bezoek onze website
Waardebepaling
Zoekopdracht
Alles downloaden
Zonnegrenzen bekijken
Op de kaart
Inwoners in Amsterdam
Cijfers voor postcodegebied 1068
- Totaal aantal inwoners
- 16675 inwoners
- Mannen
- 49%
- Vrouwen
- 51%
Inwoners in Amsterdam
Cijfers voor postcodegebied 1068
- tot 15 jaar
- 16%
- 15 tot 25 jaar
- 12%
- 25 tot 35 jaar
- 30%
- 45 tot 65 jaar
- 22%
- 65 en ouder
- 19%
Huishoudens in Amsterdam
Cijfers voor postcodegebied 1068
- Eenpersoons zonder kinderen
- 54%
- Meerpersoons zonder kinderen
- 19%
- Huishoudens zonder kinderen
- 73%
Huishoudens in Amsterdam
Cijfers voor postcodegebied 1068
- Huishoudens met één kind
- 9%
- Huishoudens met meerdere kinderen
- 18%
- Huishoudens met kinderen
- 27%
Woningen in Amsterdam
Cijfers voor postcodegebied 1068
- Woningen voor 1945
- 1%
- Woningen tussen 1945 en 1965
- 47%
- Woningen tussen 1965 en 1975
- 15%
- Woningen tussen 1975 en 1985
- 3%
- Woningen tussen 1985 en 1995
- 10%
Woningen in Amsterdam
Cijfers voor postcodegebied 1068
- Woningen tussen 1995 en 2005
- 9%
- Woningen tussen 2005 en 2015
- 13%
- Woningen na 2015
- 2%
- Huurwoningen
- 70%
- Koopwoningen
- 30%
Overige in Amsterdam
Cijfers voor postcodegebied 1068
- Gemiddelde WOZ waarde
- € 281.000,-
- Personen onder de 65 met uitkering
- 12%
Overige in Amsterdam
Cijfers voor postcodegebied 1068
- Adressen per km²
- 3718
- Stedelijkheid (schaal 1 op 5)
- 100%
Korte feiten over Amsterdam
Amsterdam is de hoofdstad van Nederland. De stad, in het Amsterdams ook Mokum genoemd (afkomstig uit het Jiddisch), ligt in de provincie Noord-Holland, aan het IJ, het Noordzeekanaal en de monding van de Amstel. De stad ligt in de gelijknamige gemeente Amsterdam en heeft 873.338 inwoners (1 januari 2021), Groot-Amsterdam telt 1.459.402 inwoners.
Franca, jouw Homi makelaar in Amsterdam
Zoek je een prachtig appartement in Amsterdam of wil je jouw woning verkopen? Ontmoet Franca, een ervaren Homi Makelaar met meer dan dertig jaar woonervaring in de hoofdstad. Dankzij haar jarenlange expertise in de makelaardij is zij dé persoon om je te begeleiden bij jouw volgende stap.
Bij Franca draait alles om jou als klant. Met haar open en hartelijke aanpak weet ze al snel een vertrouwensband op te bouwen. Haar werkwijze is gebaseerd op eerlijkheid, transparantie en professioneel advies. Of het nu gaat om de verkoop, aankoop of verhuur van een woning, Franca staat klaar om je door het hele proces te begeleiden. Jouw persoonlijke makelaar zorgt ervoor dat elk detail zorgvuldig wordt afgehandeld.
Nieuwste reviews
-
Offenbachplantsoen 32
In onze situatie en de tijdsdruk hadden de handelingen van communicatie en exposure iets beter gekunnen.Buiten dat een prettige samenwerking...
-
de Voorstenkamp 1754
Ik vond het heel spannend om mijn huis te koop te zetten maar ik kreeg duidelijke informatie en goede begeleidiing. Heb al mijn vragen altij...
-
Europalaan 76
Altijd bereikbaar en enorm vriendelijk, niks is een te grote moeite. Ik durf zeker toe te zeggen dat dit de beste makelaar is van Gemeente r...